- Overview
- Property Details
- Location
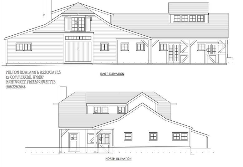
Opportunity to build your fabulous edge of town/Cliff Road one acre plus family compound on the last remaining lot on Old Westmoor Farm Road in the exclusive Westmoor Farms subdivision. Walk to Westmoor Club from your fabulous new compound. Room for two estate sized homes. Private and oversized lot, with double the zoning square footage, this property will accommodate almost 5,555 square feet of ground cover, allowing for a myriad of possibilities to build the perfect family compound in the desirable Old Westmoor Farm neighborhood. The property features a barn with Mickey Rowland plans to renovate into a four bedroom home leaving you the ability to still build a main house and pool. The property offers plenty of room to build the estate of your dreams. Many mature trees and plantings accent the location and add to the privacy while being convenient to Town, beaches and the Westmoor Club. Full 2500 square foot basement engineered and HDC approved can be constructed to render the “stables” even more spacious, with two exterior stair wells and windows providing full lighting to this grand space. Ideal for more bedrooms, a home theater, bar, recreation room, etc.; the opportunities are endless.
First Floor
The relocated barn is a blank slate waiting for renovations into a main house or cottage or pool house with entertaining area. It can be converted into a five bedroom residence. Attached plans have three bedrooms on the first floor with an open kitchen, living and dining area, study.
Second Floor
The second floor offers a master bedroom, guest room and playroom.
- Selling Date
- Listed Date 7/24/2014
- Days on Market NaN
- % To Listing Price 0
- Total Rooms 10
- Total Beds 5
- Full Baths 5
- Half Baths 1
- Lot Size 1.02 acres
- Year Built 1991
- Second Dwelling Yes
- Zoning R20
4 Old Westmoor Farm Road - Sales History
Location
What we like about West Of Town
Escape the bustle of Town, enjoying scenic views and more green space.
Learn moreRepresentation by Liz Finlay
[email protected] 508.450.3379A graduate of the University of Vermont, Liz began her real estate career in 1994 when she first moved to Nantucket. She has over two decades of real estate experience on Nantucket in both real estate sales and rentals.
About
Questions? Let us reach out to you.
Message (Optional)
Or give us a call at (508) 228-2266
A real person will answer the phone Monday-Saturday 9am-5pm, and Sunday 10am-2pm.