- Overview
- Property Details
- Location
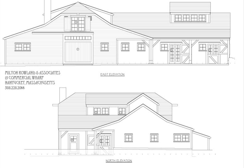
Originally constructed as a post and beam barn for the Egan Estate, this structure awaits renovation. It will placed on a new full foundation with plans by Milton Rowland to renovate the barn into a five bedroom, 4 full bath, two half bath home. The new spacious lower level could be finished into a family room, entertainment room, and more. The R20 zoning allowing for 5,555 square feet of ground cover offers substantial room for expansion, a guest cottage, and pool. The existing structure is less than 2,500 square feet leaving the option to build with 3,000 square feet remaining.
First Floor
From the approved design plans: Porch entry into the foyer with a large living room beyond, dining room, kitchen with pantry, two bedrooms each with their own private baths, two additional bedrooms with a shared bath, laundry area and powder room.
Second Floor
From the approved design plans: The second floor consists of a large master bedroom with sitting room and master bath, a large playroom or office and powder room.
- Selling Date
- Listed Date 9/13/2012
- Days on Market NaN
- % To Listing Price 0
- Total Rooms 9
- Total Beds 5
- Full Baths 4
- Half Baths 2
- Lot Size 1.02 acres
- Year Built 1991
- Second Dwelling Yes
- Zoning R20
6 Old Westmoor Farm Road - Sales History
Location
What we like about West Of Town
Escape the bustle of Town, enjoying scenic views and more green space.
Learn moreRepresentation by Liz Finlay
[email protected] 508.450.3379A graduate of the University of Vermont, Liz began her real estate career in 1994 when she first moved to Nantucket. She has over two decades of real estate experience on Nantucket in both real estate sales and rentals.
About
Questions? Let us reach out to you.
Message (Optional)
Or give us a call at (508) 228-2266
A real person will answer the phone Monday-Saturday 9am-5pm, and Sunday 10am-2pm.